اطلاعات پروژه
این پروژه برای کارکنان زیرسازی خط راه آهن زیر نظر تعاونی مسکن کارکنان بالاست در دست احداث میباشد. زمین اختصاص یافته به پروژه فوق، واقع در شهر تهران، منطقه ۱۹ شهرداری، محله اسماعیل آباد، خ برادران شکری، انتهای کوچه ۱۴ ، کوچه بید مجنون، روبروی پارک مرجان، انبار غفارزاده می باشد.
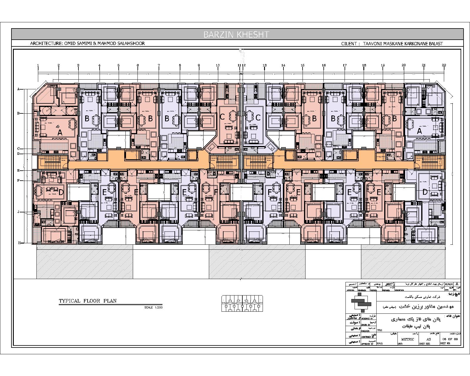
تعداد طبقات پیشنهادی:
3 طبقه برای تامین پارکینگ، ۱ طبقه برای احداث لابی و تامین پارکینگ، ۱۰ طبقه مسکونی
جزئیات پروژه
کارفرما : شرکت تعاونی مسکن بالاست
کاربری : مسکونی
مکان : منطقه ۱۹ تهرا











